Partager :
À Vendre
278 Rue de la Clairière, Saint-Philippe
J0L2K0
Maison à étages
573 799$ + taxes
12 Pièces
3
1+1
1320pi2
1
MLS: 19213092
Visite libre le 2026/04/25 de 12h à 17h.
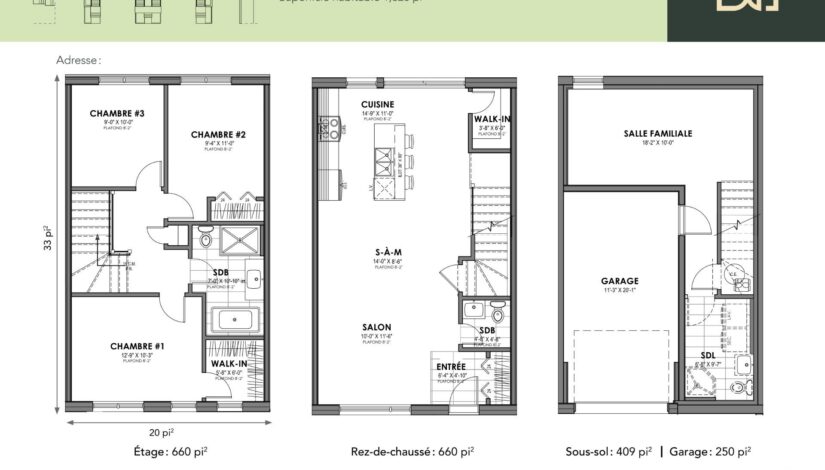
Superficie habitable : 1320 PC
Genre de propriété : Maison à étages
Type de bâtiment : En rangée
Dimensions du bâtiment : 33 X 20 P
Reprise : NON
Superficie du terrain : 1697 PC
Prise de possession : 120 jours
Zonage : Résidentiel
| Nom | Dimensions | Étages | Couvre plancher | Infos |
| Entree | 6.4 x 4.8 P | Rez-de-chaussée | Céramique | |
| Salle d'eau | 4.8 x 4.8 P | Rez-de-chaussée | Céramique | |
| Salon | 10.0 x 11.6 P | Rez-de-chaussée | Plancher flottant | |
| Salle à manger | 14.0 x 8.6 P | Rez-de-chaussée | Plancher flottant | |
| Cuisine | 14.9 x 11.0 P | Rez-de-chaussée | Plancher flottant | |
| Penderie (Walk-in) | 3.8 x 6.0 P | Rez-de-chaussée | Plancher flottant | |
| Chambre à coucher principale | 12.9 x 10.3 P | 2 | Plancher flottant | |
| Penderie (Walk-in) | 5.8 x 6.0 P | 2 | Plancher flottant | |
| Chambre à coucher | 9.4 x 11.0 P | 2 | Plancher flottant | |
| Chambre à coucher | 9.0 x 10.0 P | 2 | Plancher flottant | |
| Salle de bains | 7.0 x 10.10 P | 2 | Céramique | |
| Salle familiale | 18.2 x 10.0 P | Sous-sol | Béton | Infos : En Option |
| Salle de bains | 6.8 x 9.7 P | Sous-sol | Béton | Infos : En Option |
Nos courtiers s'engagent à élaborer un plan de match sur mesure pour votre transaction immobilière.


Pour demander une visite, merci de remplir le formulaire :